Leave a Message

Thank you for your message. We will be in touch with you shortly.

Explore Our Properties

Property Description

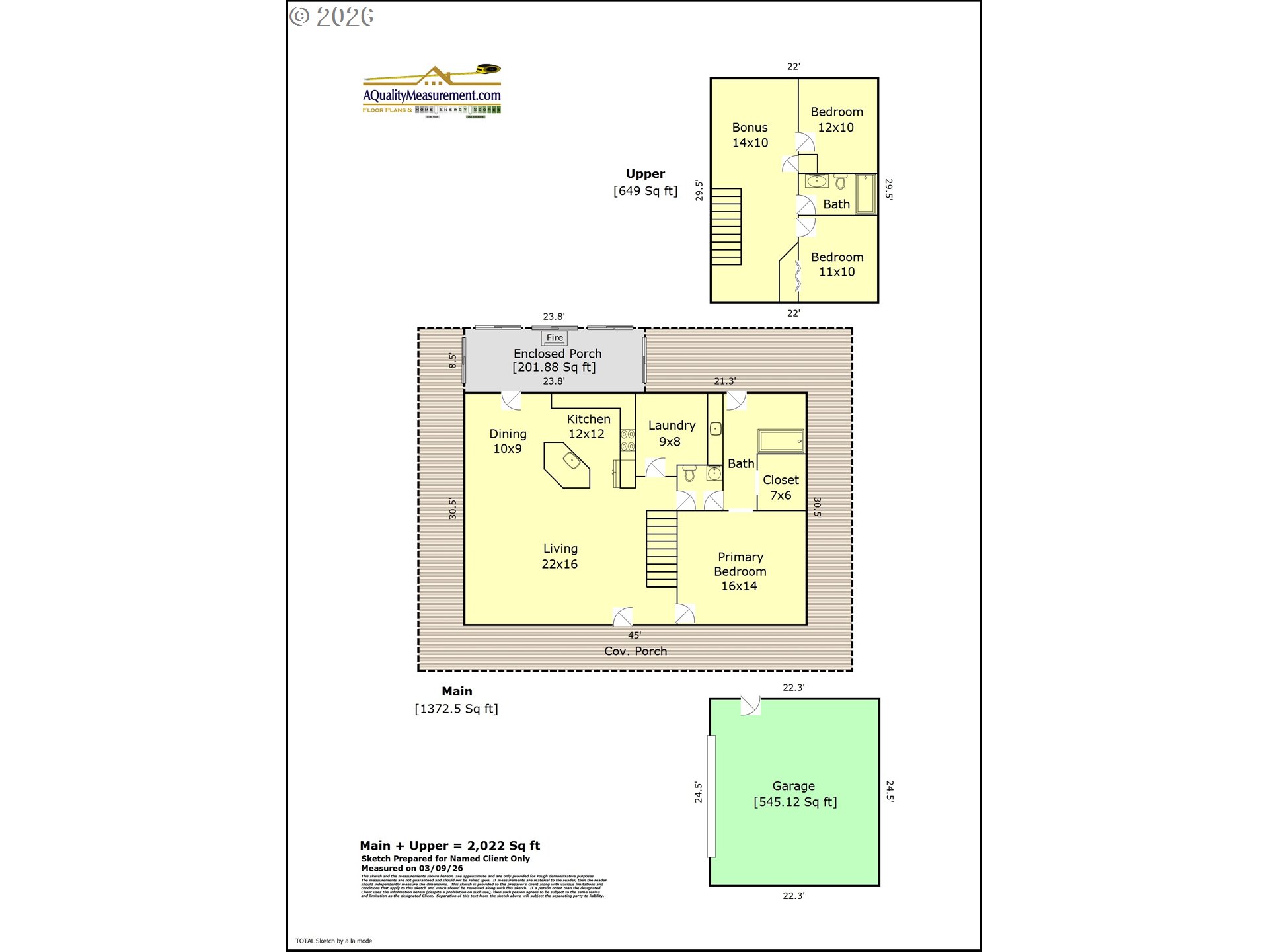
Set back off the street on just under a half acre, this custom-built log cabin feels like you are entering your own world while still living in the city. Built in 2004 from hand-scribed Douglas fir log rounds, the home is full of warmth and character while still being modern and functional. The primary suite is located on the main floor, and the sunroom, with its own wood stove, looks out over the front yard and is perfect for early morning coffee and evening conversations. The loft space works well for reading, relaxing, or as a home office. Nearly 1,200 square feet of covered porches wrap the home. The property includes a large detached two-car garage, walk-in basement storage, and mature landscaping that adds to the sense of privacy. It's a one-of-a-kind home that offers the charm of a true log cabin while still being modern and livable. Washington County taxes.

Overview

Property Status
Sold
Lot Size
0.44 Acres
MLS ID
466774053
Property Type
Residential
Year Built
2004

Features & Amenities

Total Area
2,021 Sq.Ft.
Neighborhood
Clackamas
Architecture Styles
Cabin, Log
Stories
2
Garage Spaces
2.0
Water Source
Public Water
Roof
Tile
Parking
Driveway, Off Street
Heat Type
Gas Stove, Zoned
Air Conditioning
None
Fireplace
Electric, Gas, Stove
Appliances
Dishwasher, Disposal, Free Standing Gas Range, Free Standing Refrigerator, Gas Appliances, Range Hood, Stainless Steel Appliance
Other Interior Features
Skylight, Washer Dryer
Sewer
Public Sewer
Substructure
Concrete Perimeter
Elementary School
Metzger
Middle School
Fowler
High School
Tigard
Sales Price
$730,000
Real Estate Tax
$6,730/yr

Downloads

7833 SW LARCH ST

Schedule a Tour

We would love to help you see this beautiful home! As a full-service brokerage, we can help you tour. Please submit an offer, and answer questions about the buying process.

Thank you

for your interest in 7833 SW LARCH ST, Portland, OR 97223

7833 SW LARCH ST
Navigate
7833 SW LARCH ST
explore in 3d

I'm Interested In

7833 SW LARCH ST

or
  • CallLyric Haveman

    License #201262212

    (503) 868-2986
  • Browse Our

    Active Listings

    • 17875 CRESTLINE DR Pending

      $1,725,000

      17875 CRESTLINE DR, Lake Oswego, OR 97034

      • 5 Beds
      • 4 Baths
      • 3,364 Sq.Ft.
    • 13386 SW KING LEAR WAY For Sale

      $685,000

      13386 SW KING LEAR WAY, King City, OR 97224

      • 4 Beds
      • 3 Baths
      • 2,512 Sq.Ft.
    • 25465 S BEAVERCREEK RD For Sale

      $650,000

      25465 S BEAVERCREEK RD, Beavercreek, OR 97004

      • 3 Beds
      • 2 Baths
      • 2,305 Sq.Ft.
    • 29470 SW VOLLEY ST 63 For Sale

      $250,000

      29470 SW VOLLEY ST 63, Wilsonville, OR 97070

      • 2 Beds
      • 2 Baths
      • 930 Sq.Ft.
    View All

    Follow Us On Instagram