Leave a Message

Thank you for your message. We will be in touch with you shortly.

Explore Our Properties

Property Description

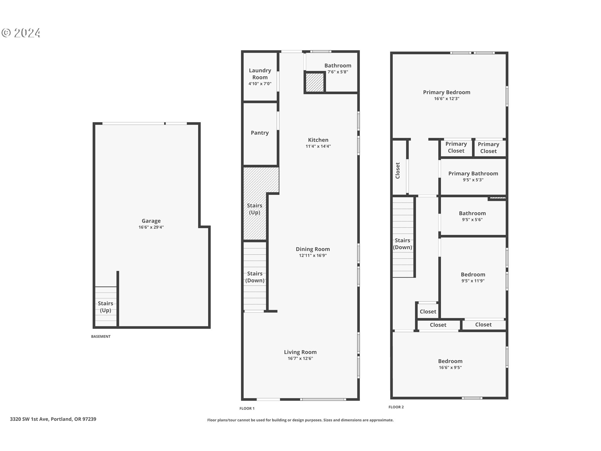
Chic End Unit Townhome: Luxurious 3 Bedroom 2.5 Bath with Modern Kitchen & Covered Deck! Discover urban elegance in this stylish townhome nestled in vibrant SW Portland. Laminate flooring graces the interiors, while sunlight floods through ample windows, creating a bright and airy feel. Indulge in culinary delights in the stunning kitchen featuring quartz countertops, stainless steel appliances, and an inviting eat bar adjoining the dining room, ideal for entertaining guests. Unwind in the spacious primary bedroom with double closets, and step outside to the covered deck off the dining room, offering a perfect spot for year-round relaxation. With a one-car garage and close proximity to parks, eateries, shops, and entertainment, this townhome offers the ultimate blend of convenience and luxury living. Embrace the urban lifestyle and make this beautiful home yours! [Home Energy Score = 10. HES Report at https://rpt.greenbuildingregistry.com/hes/OR10140910]

Overview

Property Status
Sold
Lot Size
2,178 Sq.Ft.
MLS ID
24181693
Property Type
Residential
Year Built
2016

Features & Amenities

Total Area
1,962 Sq.Ft.
Neighborhood
Portland
Architecture Styles
Other, Townhouse
Stories
2
Garage Spaces
1.0
Water Source
Public Water
Roof
Composition
Heat Type
Other
Air Conditioning
Central Air
Appliances
Dishwasher, Disposal, Granite, Island, Microwave, Stainless Steel Appliance
Other Interior Features
Ceiling Fan, Laminate Flooring, Laundry, Tile Floor, Wallto Wall Carpet
Sewer
Public Sewer
Other Exterior Features
Deck
Elementary School
Capitol Hill
Middle School
Jackson
High School
Ida B Wells
Sales Price
$635,000
Real Estate Tax
$7,813/yr

Downloads

3320 SW 1ST AVE

Schedule a Tour

We would love to help you see this beautiful home! As a full-service brokerage, we can help you tour. Please submit an offer, and answer questions about the buying process.

Thank you

for your interest in 3320 SW 1ST AVE, Portland, OR 97239

3320 SW 1ST AVE
Navigate
3320 SW 1ST AVE
explore in 3d

I'm Interested In

3320 SW 1ST AVE

or
  • CallAaron Pontius

    License #201235406

    (503) 822-3730
  • Browse Our

    Active Listings

    • 6820 SE 29TH AVE For Sale

      $1,925,000

      6820 SE 29TH AVE, Portland, OR 97202

      • 5 Beds
      • 4 Baths
      • 4,664 Sq.Ft.
    • 5247 SW GARDEN HOME RD Pending

      $975,000

      5247 SW GARDEN HOME RD, Portland, OR 97219

      • 3 Beds
      • 4 Baths
      • 3,050 Sq.Ft.
    • 8512 SE CONSTANCE DR For Sale

      $960,000

      8512 SE CONSTANCE DR, Happy Valley, OR 97086

      • 5 Beds
      • 3 Baths
      • 3,984 Sq.Ft.
    • 2966 NW CORNELL RD, Portland For Sale

      $895,000

      2966 NW CORNELL RD, Portland, OR 97210

      • 4 Beds
      • 3 Baths
      • 2,850 Sq.Ft.
    • 3824 SE CARLTON ST Pending

      $849,900

      3824 SE CARLTON ST, Portland, OR 97202

      • 4 Beds
      • 2 Baths
      • 2,468 Sq.Ft.
    • 3345 NE 126th Ave For Sale

      $785,000

      3345 Northeast 126th Avenue, Portland, OR 97230

      • 5 Beds
      • 3,528 Sq.Ft.
    • 1825 NE 53RD AVE For Sale

      $730,000

      1825 NE 53RD AVE, Portland, OR 97213

      • 3 Beds
      • 2 Baths
      • 1,885 Sq.Ft.
    • 5406 NE COUCH ST For Sale

      $630,000

      5406 NE COUCH ST, Portland, OR 97213

      • 3 Beds
      • 3 Baths
      • 1,797 Sq.Ft.
    • 2951 NE 35TH AVE Pending

      $625,000

      2951 NE 35TH AVE, Portland, OR 97212

      • 3 Beds
      • 2 Baths
      • 2,110 Sq.Ft.
    • 5239 N EMERSON DR, Portland For Sale

      $575,000

      5239 N EMERSON DR, Portland, OR 97217

      • 2 Beds
      • 2 Baths
      • 1,794 Sq.Ft.
    • 14124 SE MILL ST For Sale

      $525,000

      14124 SE MILL ST, Portland, OR 97233

      • 3 Beds
      • 2 Baths
      • 2,200 Sq.Ft.
    • 2525 SW HUME CT Pending

      $525,000

      2525 SW HUME CT, Portland, OR 97219

      • 4 Beds
      • 3 Baths
      • 2,472 Sq.Ft.
    • 616 SE 60TH AVE For Sale

      $525,000

      616 SE 60TH AVE, Portland, OR 97215

      • 3 Beds
      • 2 Baths
      • 1,602 Sq.Ft.
    • 5265 SE LAMBERT ST For Sale

      $510,000

      5265 SE LAMBERT ST, Portland, OR 97206

      • 3 Beds
      • 2 Baths
      • 2,366 Sq.Ft.
    • 3712 SE 31ST AVE For Sale

      $499,000

      3712 SE 31ST AVE, Portland, OR 97202

      • 4 Beds
      • 2 Baths
    • 8981 N DRUMMOND AVE For Sale

      $490,000

      8981 N DRUMMOND AVE, Portland, OR 97217

      • 3 Beds
      • 3 Baths
      • 1,594 Sq.Ft.
    • 5425 SW VIEW POINT TER For Sale

      $475,000

      5425 SW VIEW POINT TER, Portland, OR 97239

      • 2 Beds
      • 3 Baths
      • 1,710 Sq.Ft.
    • 9023 SE ANKENY ST For Sale

      $474,900

      9023 SE ANKENY ST, Portland, OR 97216

      • 4 Beds
      • 2 Baths
    • 4405 SE ALDER ST For Sale

      $465,000

      4405 SE ALDER ST, Portland, OR 97215

      • 2 Beds
      • 2 Baths
      • 2,679 Sq.Ft.
    • 7570 SE DIVISION ST Pending

      $455,000

      7570 SE DIVISION ST, Portland, OR 97206

      • 3 Beds
      • 4 Baths
      • 1,610 Sq.Ft.
    • 3449 NE 81ST AVE For Sale

      $429,900

      3449 NE 81ST AVE, Portland, OR 97213

      • 3 Beds
      • 3 Baths
      • 1,329 Sq.Ft.
    • 16901 SE IVON ST For Sale

      $415,000

      16901 SE IVON ST, Portland, OR 97236

      • 2 Beds
      • 1 Bath
      • 2,048 Sq.Ft.
    • 5123/5125 NE KILLINGSWORTH ST Pending

      $415,000

      5123/5125 NE KILLINGSWORTH ST, Portland, OR 97218

      • 4 Beds
      • 2 Baths
      • 1,702 Sq.Ft.
    • 11529 NE FARGO ST Pending

      $399,900

      11529 NE FARGO ST, Portland, OR 97220

      • 3 Beds
      • 2 Baths
      • 1,599 Sq.Ft.
    • 3063 SE 112TH AVE Pending

      $399,900

      3063 SE 112TH AVE, Portland, OR 97266

      • 3 Beds
      • 2 Baths
      • 1,305 Sq.Ft.
    • 7453 N STOCKTON AVE For Sale

      $399,000

      7453 N STOCKTON AVE, Portland, OR 97203

      • 2 Beds
      • 2 Baths
      • 1,840 Sq.Ft.
    • 6099 NE Going ST Pending

      $385,000

      6099 NE Going ST, Portland, OR 97218

      • 2 Beds
      • 1 Bath
      • 1,759 Sq.Ft.
    • 5253 SE KNAPP ST Pending

      $375,000

      5253 SE KNAPP ST, Portland, OR 97206

      • 3 Beds
      • 2 Baths
      • 1,342 Sq.Ft.
    • 725 NW FLANDERS ST 304 For Sale

      $375,000

      725 NW FLANDERS ST 304, Portland, OR 97209

      • 1 Bed
      • 1 Bath
      • 1,104 Sq.Ft.
    • 836 S CURRY ST 1206 For Sale

      $375,000

      836 S CURRY ST 1206, Portland, OR 97239

      • 1 Bed
      • 1 Bath
      • 982 Sq.Ft.
    • 1310 NW NAITO PKWY 105 For Sale

      $365,000

      1310 NW NAITO PKWY 105, Portland, OR 97209

      • 1 Bed
      • 2 Baths
      • 1,015 Sq.Ft.
    • 6313 SE 96TH PL Pending

      $340,000

      6313 SE 96TH PL, Portland, OR 97266

      • 3 Beds
      • 2 Baths
      • 1,224 Sq.Ft.
    • 5394 SE 136TH AVE Pending

      $325,000

      5394 SE 136TH AVE, Portland, OR 97236

      • 3 Beds
      • 3 Baths
      • 1,476 Sq.Ft.
    • 606 NW NAITO PKWY A14 For Sale

      $290,000

      606 NW NAITO PKWY A14, Portland, OR 97209

      • 1 Bed
      • 1 Bath
      • 691 Sq.Ft.
    • 606 NW NAITO PKWY A11 For Sale

      $270,000

      606 NW NAITO PKWY A11, Portland, OR 97209

      • 1 Bed
      • 1 Bath
      • 691 Sq.Ft.
    • 205 S MONTGOMERY ST 401B For Sale

      $249,000

      205 S MONTGOMERY ST 401B, Portland, OR 97201

      • 1 Bed
      • 1 Bath
      • 835 Sq.Ft.
    • 820 NW NAITO PKWY G2 For Sale

      $220,000

      820 NW NAITO PKWY G2, Portland, OR 97209

      • 1 Bed
      • 1 Bath
      • 700 Sq.Ft.
    • 15946 NE FREMONT ST For Sale

      $219,999

      15946 NE FREMONT ST, Portland, OR 97230

      • 3 Beds
      • 2 Baths
      • 1,073 Sq.Ft.
    View All

    Follow Us On Instagram