Leave a Message

Thank you for your message. We will be in touch with you shortly.

Explore Our Properties

Property Description

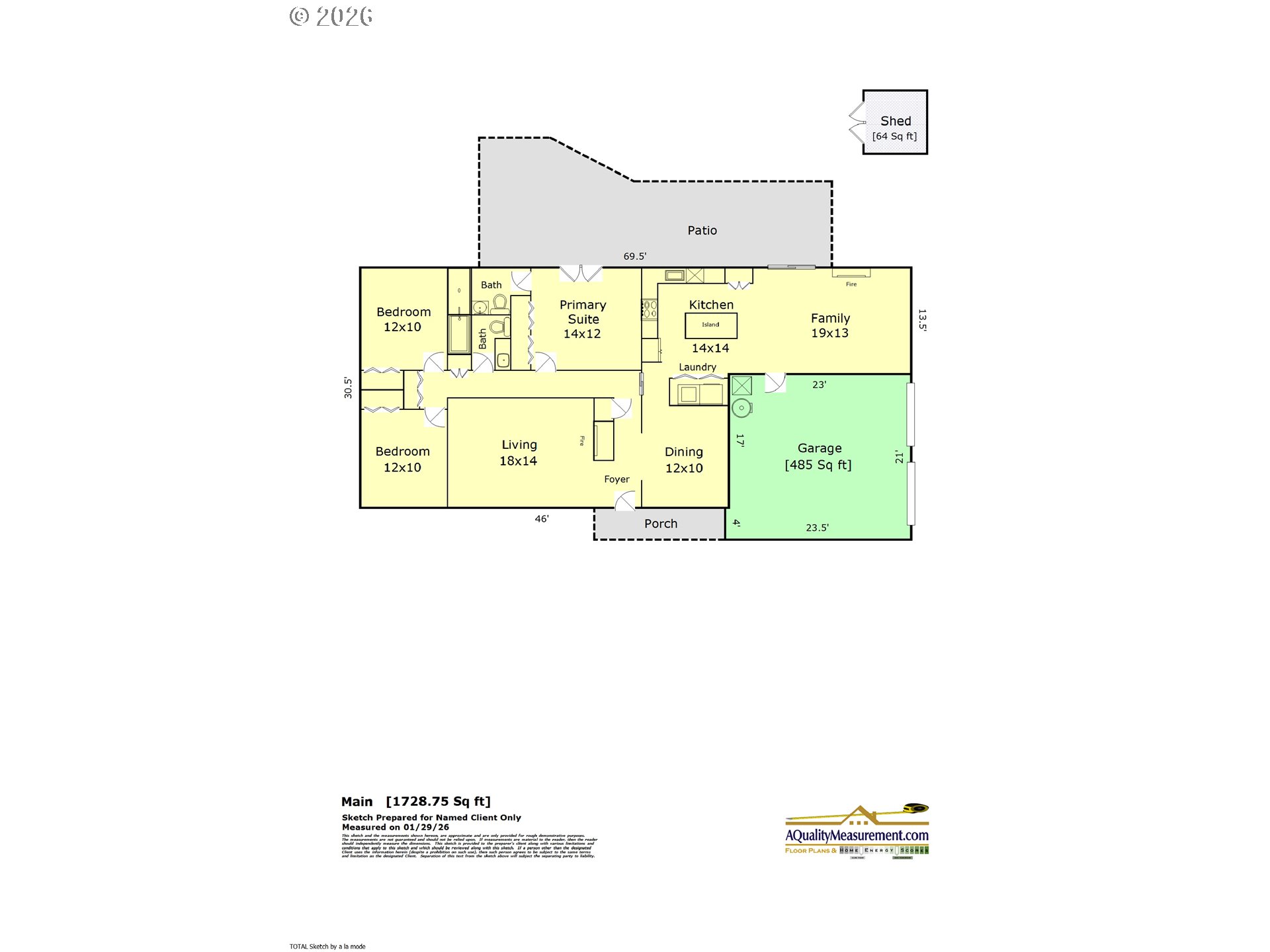
This one is truly special. Fully renovated and rich with mid-century modern charm, this three-bedroom, two-bath home blends iconic design with thoughtful, high-quality updates throughout. The layout is open and intuitive, anchored by a large kitchen with an oversized island that invites gathering, entertaining, and everyday living. Designer finishes are layered throughout the home, including two striking Herman Miller Nelson pendants that nod to the home's design-forward roots. Two fireplaces add warmth, character, and a sense of timeless comfort, while a brand-new roof provides confidence for years to come. Set on a prominent corner lot, the home offers incredible street appeal with clean lines and intentional details that stand out immediately. The neighborhood is quiet and peaceful, yet well connected, with access to a nearby community pool. From curb to interior, every detail feels considered. A rare opportunity to own a home that is both architecturally inspired and completely move-in ready. [Home Energy Score = 2. HES Report at https://rpt.greenbuildingregistry.com/hes/OR10244053]

Overview

Property Status
Pending
Lot Size
10,018 Sq.Ft.
MLS ID
757395295
Property Type
Residential
Year Built
1972

Features & Amenities

Total Area
1,729 Sq.Ft.
Neighborhood
Hillsboro
Architecture Styles
Mid Century Modern, Ranch
Stories
1
Garage Spaces
2.0
Water Source
Public Water
Roof
Composition, Shingle
Lot Features
Corner Lot, Cul_de_sac, Level
Parking
Driveway, Off Street
Heat Type
Forced Air
Air Conditioning
Central Air
Fireplace
Wood Burning
Appliances
Dishwasher, Disposal, Free Standing Range, Free Standing Refrigerator, Island, Quartz, Range Hood
Other Interior Features
Laundry, Luxury Vinyl Plank, Quartz
Sewer
Public Sewer
Substructure
Concrete Perimeter
Disability Features
Garageon Main, Main Floor Bedroom Bath, Minimal Steps, One Level
Other Exterior Features
Fenced, Yard
Elementary School
Minter Bridge
Middle School
Brown
High School
Hillsboro
Sales Price
$585,000
Real Estate Tax
$4,205/yr
HOA
$90/mo

Downloads

2573 SE MEADOW LARK DR

Schedule a Tour

We would love to help you see this beautiful home! As a full-service brokerage, we can help you tour. Please submit an offer, and answer questions about the buying process.

Thank you

for your interest in 2573 SE MEADOWLARK DR, Hillsboro, OR 97123

2573 SE MEADOW LARK DR
Navigate

Mortgage Calculator

Estimate your monthly mortgage payment, including the principal and interest, property taxes, and HOA. Adjust the values to generate a more accurate rate.
$0,000 Your Payment 20 15 65
$0,000 Your Payment

I'm Interested In

2573 SE MEADOW LARK DR

or Contact

Browse Our

Active Listings

  • 1868 SE OAK ST For Sale

    $684,900

    1868 SE OAK ST, Hillsboro, OR 97123

    • 5 Beds
    • 3 Baths
    • 2,574 Sq.Ft.
  • 1016 NE 10TH AVE Pending

    $550,000

    1016 NE 10TH AVE, Hillsboro, OR 97124

    • 4 Beds
    • 2 Baths
    • 1,982 Sq.Ft.
  • 2439 SE 63RD WAY Pending

    $514,900

    2439 SE 63RD WAY, Hillsboro, OR 97123

    • 4 Beds
    • 3 Baths
    • 1,820 Sq.Ft.
  • 1316 SE ROUNDELAY ST For Sale

    $365,000

    1316 SE ROUNDELAY ST, Hillsboro, OR 97123

    • 3 Beds
    • 3 Baths
    • 1,444 Sq.Ft.
  • 7902 NE MIRIAM WAY For Sale

    $270,000

    7902 NE MIRIAM WAY, Hillsboro, OR 97006

    • 2 Beds
    • 1 Bath
    • 855 Sq.Ft.
  • 10834 NE HOLLY ST 204 Pending

    $250,000

    10834 NE HOLLY ST 204, Hillsboro, OR 97006

    • 2 Beds
    • 2 Baths
    • 966 Sq.Ft.
View All

Follow Us On Instagram