Leave a Message

Thank you for your message. We will be in touch with you shortly.

Explore Our Properties

Property Description

OFFER RECEIVED- Submit all offers by 4PM 03/29/26. Motivated sellers + strong pricing = opportunity buyers will be thankful for! This spacious and inviting 4-bedroom home also includes a bonus room that can serve as a 5th bedroom, home office, or media space. Perched on over 5 private acres, the property offers beautiful views and the perfect blend of comfort, function, and tranquility.The expansive primary suite is a true retreat, featuring its own sun room/den/sitting room, a generous walk-in closet, and a spa-like bathroom complete with two vanities, soaking tub, and shower. The heart of the home is the open kitchen and living area, designed for gathering and entertaining, complete with a cozy wood-burning fireplace to warm up those cool evenings. Thoughtfully updated, this home boasts fresh interior and paint, brand-new carpet, durable flooring, and modern appliances--providing a move-in ready experience. Outdoors, enjoy established fruit trees, create your dream garden, or simply soak in the privacy and wide-open space.

Overview

Property Status
Sold
Lot Size
5.06 Acres
MLS ID
402070758
Property Type
Residential
Year Built
1979

Features & Amenities

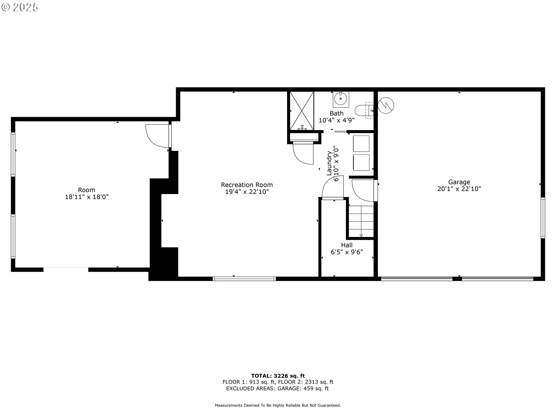
Total Area
3,394 Sq.Ft.
Neighborhood
Clackamas
Architecture Styles
Stories 2, Split
View Description
Territorial, Trees Woods, Valley
Stories
2
Garage Spaces
2.0
Water Source
Well
Roof
Composition
Lot Features
Gentle Sloping, Hilly, Private, Private Road, Secluded, Trees
Parking
Driveway
Heat Type
Forced Air
Air Conditioning
Heat Pump
Fireplace
Wood Burning
Appliances
Builtin Range, Convection Oven, Dishwasher, Disposal, ENERGYSTARQualified Appliances, Free Standing Refrigerator, Microwave, Quartz, Stainless Steel Appliance
Other Interior Features
Ceiling Fan, Granite, High Ceilings, Jetted Tub, Laundry, Quartz, Soaking Tub, Vaulted Ceiling, Wallto Wall Carpet, Washer Dryer, Water Softener, Wood Floors
Sewer
Septic Tank
Substructure
Concrete Perimeter
Other Exterior Features
Deck, Fire Pit, Porch, Tool Shed, Yard
Elementary School
Clackamas River
Middle School
Estacada
High School
Estacada
Sales Price
$660,000
Real Estate Tax
$6,295/yr
Zoning
FF10

Downloads

22486 S REDLAND RD

Schedule a Tour

We would love to help you see this beautiful home! As a full-service brokerage, we can help you tour. Please submit an offer, and answer questions about the buying process.

Thank you

for your interest in 22486 S REDLAND RD, Estacada, OR 97023

22486 S REDLAND RD
Navigate
22486 S REDLAND RD
explore in 3d

I'm Interested In

22486 S REDLAND RD

or
  • CallAlexa Heilbrun

    License #201252571

    (503) 806-4658
  • Browse Our

    Active Listings

    • 17875 CRESTLINE DR Pending

      $1,725,000

      17875 CRESTLINE DR, Lake Oswego, OR 97034

      • 5 Beds
      • 4 Baths
      • 3,364 Sq.Ft.
    • 13386 SW KING LEAR WAY For Sale

      $685,000

      13386 SW KING LEAR WAY, King City, OR 97224

      • 4 Beds
      • 3 Baths
      • 2,512 Sq.Ft.
    • 25465 S BEAVERCREEK RD For Sale

      $650,000

      25465 S BEAVERCREEK RD, Beavercreek, OR 97004

      • 3 Beds
      • 2 Baths
      • 2,305 Sq.Ft.
    • 29470 SW VOLLEY ST 63 For Sale

      $250,000

      29470 SW VOLLEY ST 63, Wilsonville, OR 97070

      • 2 Beds
      • 2 Baths
      • 930 Sq.Ft.
    View All

    Follow Us On Instagram