Leave a Message

Thank you for your message. We will be in touch with you shortly.

Explore Our Properties

Property Description

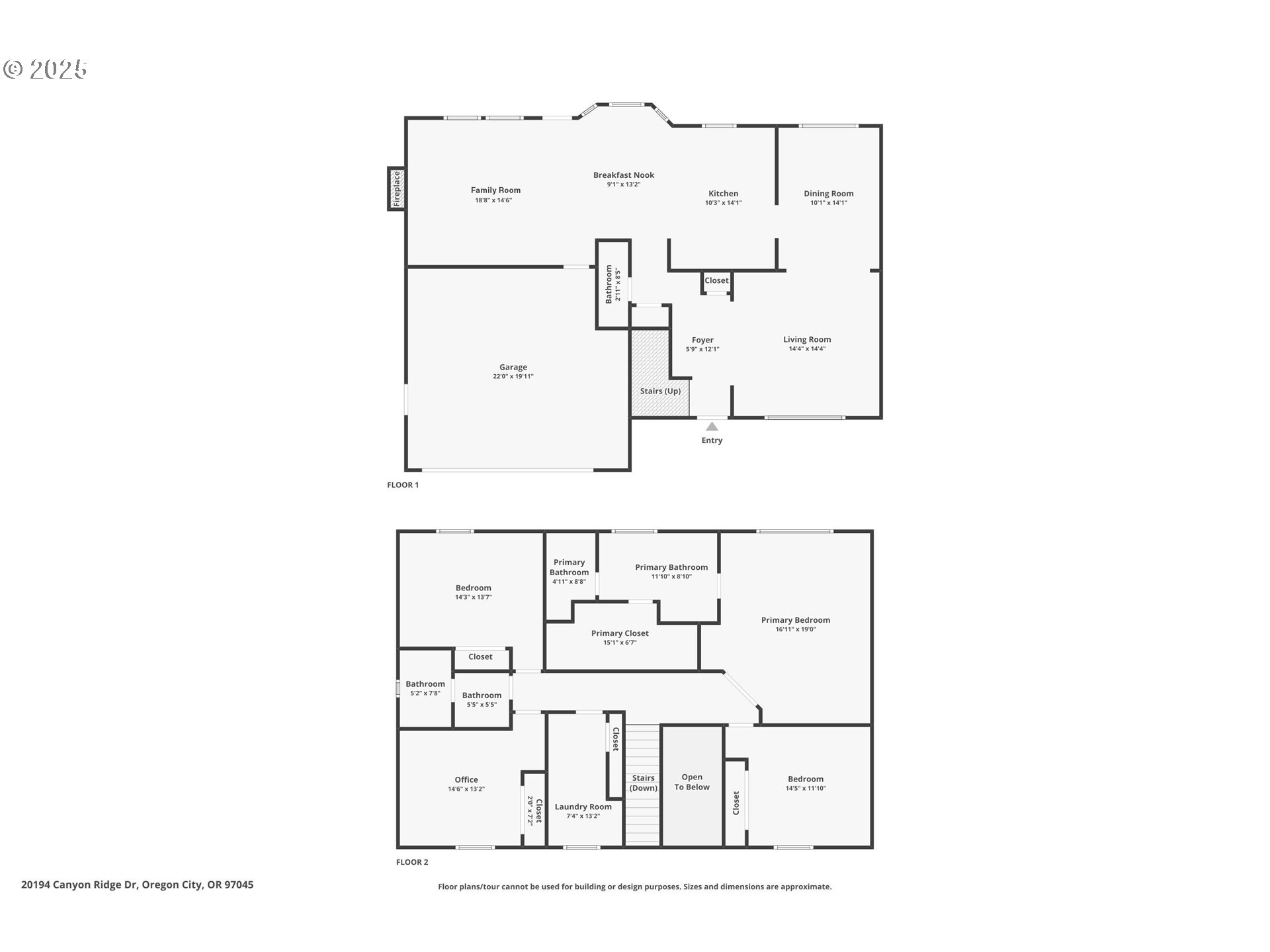
Nestled at the end of a quiet street in Oregon City, this one-owner, beautifully maintained two-story home feels like a private retreat surrounded by mature landscaping and enhanced with quality updates inside and out. Major improvements include a 50-year roof (2019), Leaf Guard gutters (2009), high-efficiency dual-stage heat pump with smart thermostat (2022), and a new gas fireplace with tile surround (2023). The kitchen was fully remodeled in 2018 with custom cabinetry, granite counters, and stainless steel appliances. Bathrooms feature custom vanities, granite, and tile throughout, while the primary suite offers a spa-like experience with skylights, a soaking tub, and walk-in closet. Enjoy abundant natural light throughout, engineered mahogany hardwood floors, and an updated laundry room. Step outside to a fully-fenced backyard with raised garden beds, a Tuff Shed, and a spacious cedar deck made for relaxing and entertaining. Truly move-in ready - schedule your private showing today!

Overview

Property Status
For Sale
Lot Size
10,454 Sq.Ft.
MLS ID
711503003
Property Type
Residential
Year Built
1995

Features & Amenities

Total Area
2,531 Sq.Ft.
Neighborhood
Oregon City
Architecture Styles
Stories 2
Stories
2
Garage Spaces
2.0
Water Source
Public Water
Roof
Composition
Lot Features
Level, Private
Parking
Driveway, Off Street
Heat Type
Forced Air
Air Conditioning
Central Air, Heat Pump
Other Interior Features
Ceiling Fan, Central Vacuum, Dual Flush Toilet, Engineered Hardwood, Garage Door Opener, Laundry, Luxury Vinyl Plank, Skylight, Soaking Tub, Tile Floor, Wallto Wall Carpet, Washer Dryer
Sewer
Public Sewer
Substructure
Concrete Perimeter
HOA Amenities
Maintenance Grounds
Other Exterior Features
Deck, Fenced, Fire Pit, Garden, Porch, RVParking, RVBoat Storage, Sprinkler, Tool Shed, Yard
Elementary School
Beavercreek
Middle School
Tumwata
High School
Oregon City
Sales Price
$725,000
Real Estate Tax
$6,947/yr
HOA
$100/yr

Downloads

20194 CANYON RIDGE DR

Schedule a Tour

We would love to help you see this beautiful home! As a full-service brokerage, we can help you tour. Please submit an offer, and answer questions about the buying process.

Enter a valid email

Thank you

for your interest in 20194 CANYON RIDGE DR, Oregon City, OR 97045

back to page
20194 CANYON RIDGE DR
Navigate
20194 CANYON RIDGE DR
explore in 3d

Mortgage Calculator

Estimate your monthly mortgage payment, including the principal and interest, property taxes, and HOA. Adjust the values to generate a more accurate rate.
$0,000 Your Payment 20 15 65
$0,000 Your Payment

I'm Interested In

20194 CANYON RIDGE DR

or
  • CallRyan Cavanagh

    License #201251708

    (503) 382-8956
  • Browse Our

    Active Listings

    • 15067 Glendoveer CT Pending

      $599,900

      15067 Glendoveer CT, Oregon City, OR 97045

      • 4 Beds
      • 3 Baths
      • 2,214 Sq.Ft.
    • 504 ABERNETHY RD For Sale

      $535,000

      504 ABERNETHY RD, Oregon City, OR 97045

      • 4 Beds
      • 1 Bath
      • 2,498 Sq.Ft.
    • 712 MADISON ST For Sale

      $515,000

      712 MADISON ST, Oregon City, OR 97045

      • 3 Beds
      • 2 Baths
      • 1,514 Sq.Ft.
    View All

    Follow Us On Instagram