Leave a Message

Thank you for your message. We will be in touch with you shortly.

Explore Our Properties

Property Description

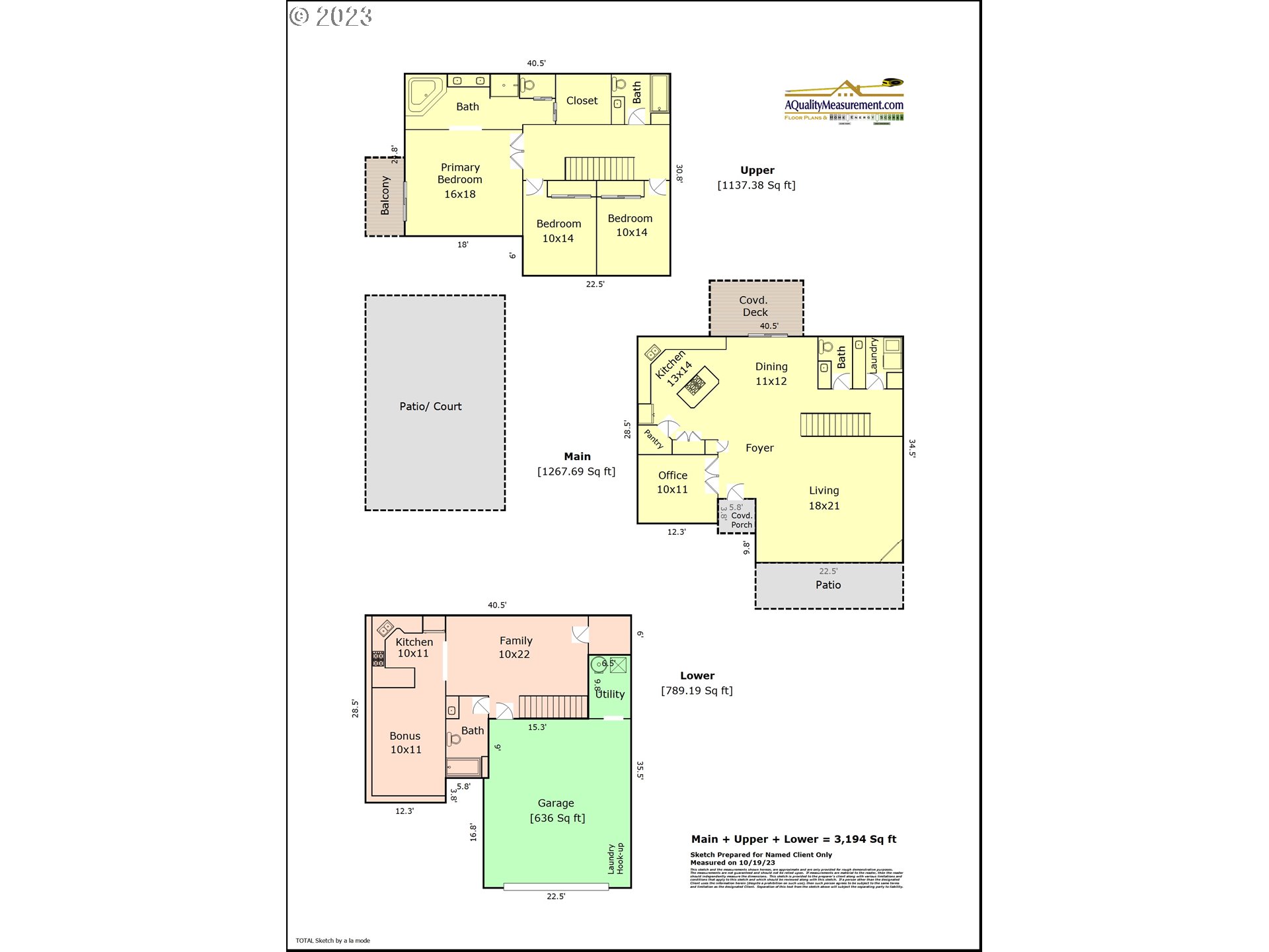
Expansive two or three-story multifamily home featuring an oversized garage and a picturesque fish pond in the front yard. This unique property offers the perfect combination of ample parking space and a serene outdoor oasis. Enjoy the convenience of a spacious garage while admiring the soothing ambiance of a front yard fish pond, all with the backdrop of beautiful MT. hood views and park access.

Overview

Property Status
Sold
Lot Size
10,454 Sq.Ft.
MLS ID
23081830
Property Type
Residential
Year Built
1999

Features & Amenities

Neighborhood
Portland
Architecture Styles
Stories 2, Mediterranean Mission Spanish
View Description
City, Mountain, Valley
Stories
2
Garage Spaces
2.0
Water Source
Public Water
Roof
Composition
Lot Features
Gentle Sloping
Parking
Driveway, Other
Heat Type
Forced Air
Air Conditioning
Central Air
Other Interior Features
Central Vacuum, Granite, Hardwood Floors, High Ceilings, Jetted Tub, Laundry, Sprinkler, Wallto Wall Carpet, Washer Dryer
Sewer
Public Sewer
Substructure
Concrete Perimeter
Disability Features
Bathroom Cabinets, Walkin Shower
Security Features
Security System Owned
Other Exterior Features
Covered Patio, Deck, Fenced, Garden, Patio, Sprinkler, Water Feature, Yard
Elementary School
Pleasant Valley
Middle School
Centennial
High School
Centennial
Sales Price
$590,000
Real Estate Tax
$8,502/yr
HOA
$25/mo
Zoning
R10

Downloads

16423 SE MEADOWLAND CT

Schedule a Tour

We would love to help you see this beautiful home! As a full-service brokerage, we can help you tour. Please submit an offer, and answer questions about the buying process.

Enter a valid email

Thank you

for your interest in 16423 SE MEADOWLAND CT, Portland, OR 97236

back to page
16423 SE MEADOWLAND CT
Navigate

I'm Interested In

16423 SE MEADOWLAND CT

or
  • CallSarah Malarkey

    License #201219496

    503-890-0860
  • Browse Our

    Active Listings

    • 6820 SE 29TH AVE For Sale

      $1,925,000

      6820 SE 29TH AVE, Portland, OR 97202

      • 5 Beds
      • 4 Baths
      • 4,664 Sq.Ft.
    • 5247 SW GARDEN HOME RD For Sale

      $999,000

      5247 SW GARDEN HOME RD, Portland, OR 97219

      • 3 Beds
      • 4 Baths
      • 3,050 Sq.Ft.
    • 2966 NW CORNELL RD, Portland For Sale

      $995,000

      2966 NW CORNELL RD, Portland, OR 97210

      • 3 Beds
      • 3 Baths
      • 2,850 Sq.Ft.
    • 8512 SE CONSTANCE DR For Sale

      $970,000

      8512 SE CONSTANCE DR, Happy Valley, OR 97086

      • 5 Beds
      • 3 Baths
      • 3,984 Sq.Ft.
    • 4041 SW 55TH DR For Sale

      $925,000

      4041 SW 55TH DR, Portland, OR 97221

      • 3 Beds
      • 4 Baths
      • 2,971 Sq.Ft.
    • 3570 S RIVER PKWY 2301 Pending

      $870,000

      3570 S RIVER PKWY 2301, Portland, OR 97239

      • 2 Beds
      • 2 Baths
      • 1,756 Sq.Ft.
    • 3824 SE CARLTON ST For Sale

      $849,900

      3824 SE CARLTON ST, Portland, OR 97202

      • 4 Beds
      • 2 Baths
      • 2,468 Sq.Ft.
    • 3345 NE 126th Ave For Sale

      $785,000

      3345 Northeast 126th Avenue, Portland, OR 97230

      • 5 Beds
      • 3,528 Sq.Ft.
    • 7763 SE 72ND AVE Pending

      $749,950

      7763 SE 72ND AVE, Portland, OR 97206

      • 9 Beds
      • 6 Baths
      • 3,852 Sq.Ft.
    • 7520 SE Madison ST Pending

      $650,000

      7520 SE Madison ST, Portland, Portland, OR 97215

      • 4 Beds
      • 2 Baths
      • 2,608 Sq.Ft.
    • 2951 NE 35TH AVE For Sale

      $647,000

      2951 NE 35TH AVE, Portland, OR 97212

      • 3 Beds
      • 2 Baths
      • 2,110 Sq.Ft.
    • 6817 SE 144TH AVE For Sale

      $647,000

      6817 SE 144TH AVE, Portland, OR 97236

      • 3 Beds
      • 3 Baths
      • 2,022 Sq.Ft.
    • 5239 N EMERSON DR, Portland For Sale

      $625,000

      5239 N EMERSON DR, Portland, OR 97217

      • 2 Beds
      • 2 Baths
      • 1,794 Sq.Ft.
    • 9939/9927 SW 25TH AVE Pending

      $575,000

      9939/9927 SW 25TH AVE, Portland, Portland, OR 97219

      • 2 Beds
      • 1 Bath
      • 988 Sq.Ft.
    • 4338 NE PRESCOTT ST For Sale

      $559,000

      4338 NE PRESCOTT ST, Portland, OR 97218

      • 3 Beds
      • 2 Baths
      • 1,589 Sq.Ft.
    • 6335 SE 65TH AVE For Sale

      $535,000

      6335 SE 65TH AVE, Portland, OR 97206

      • 4 Beds
      • 3 Baths
      • 1,826 Sq.Ft.
    • 14124 SE MILL ST For Sale

      $525,000

      14124 SE MILL ST, Portland, OR 97233

      • 3 Beds
      • 2 Baths
      • 2,200 Sq.Ft.
    • 14818 NE FREMONT ST For Sale

      $525,000

      14818/14822 NE FREMONT ST, Portland, OR 97230

      • 4 Beds
      • 6 Baths
      • 2,158 Sq.Ft.
    • 1644 N JARRETT ST For Sale

      $518,000

      1644 N JARRETT ST, Portland, OR 97217

      • 3 Beds
      • 1 Bath
      • 1,388 Sq.Ft.
    • 3144 NE 77TH AVE, Portland Pending

      $499,900

      3144 NE 77TH AVE, Portland, OR 97213

      • 3 Beds
      • 1 Bath
      • 1,898 Sq.Ft.
    • 3712 SE 31ST AVE For Sale

      $499,000

      3712 SE 31ST AVE, Portland, OR 97202

      • 4 Beds
      • 2 Baths
    • 9023 SE ANKENY ST For Sale

      $474,900

      9023 SE ANKENY ST, Portland, OR 97216

      • 4 Beds
      • 2 Baths
    • 1315 SE 114TH AVE, Portland For Sale

      $450,000

      1315 SE 114TH AVE, Portland, OR 97216

      • 4 Beds
      • 2 Baths
      • 2,001 Sq.Ft.
    • 6423 SE 63RD AVE Active Under Contract

      $444,900

      6423 SE 63RD AVE, Portland, OR 97206

      • 2 Beds
      • 1 Bath
      • 1,100 Sq.Ft.
    • 9913 SE STEELE ST Pending

      $435,000

      9913 SE STEELE ST, Portland, OR 97266

      • 3 Beds
      • 2 Baths
      • 1,580 Sq.Ft.
    • 6520 SE 70TH AVE A For Sale

      $425,000

      6520 SE 70TH AVE A, Portland, OR 97206

      • 2 Beds
      • 2 Baths
      • 1,270 Sq.Ft.
    • 7211 SE 84TH AVE For Sale

      $425,000

      7211 SE 84TH AVE, Portland, OR 97266

      • 2 Beds
      • 1 Bath
      • 960 Sq.Ft.
    • 725 NW FLANDERS ST 304 For Sale

      $375,000

      725 NW FLANDERS ST 304, Portland, OR 97209

      • 1 Bath
      • 1,104 Sq.Ft.
    • 836 S CURRY ST 1206 For Sale

      $375,000

      836 S CURRY ST 1206, Portland, OR 97239

      • 1 Bed
      • 1 Bath
      • 982 Sq.Ft.
    • 1314 NW IRVING ST 202 For Sale

      $370,000

      1314 NW IRVING ST 202, Portland, OR 97209

      • 1,109 Sq.Ft.
    • 1314 NW IRVING ST 202 For Sale

      $370,000

      1314 NW IRVING ST 202, Portland, OR 97209

      • 1 Bed
      • 1 Bath
      • 1,109 Sq.Ft.
    • 1310 NW NAITO PKWY 105 For Sale

      $365,000

      1310 NW NAITO PKWY 105, Portland, OR 97209

      • 1 Bed
      • 2 Baths
      • 1,015 Sq.Ft.
    • 411 NW FLANDERS ST 805 For Sale

      $365,000

      411 NW FLANDERS ST 805, Portland, OR 97209

      • 1 Bed
      • 1 Bath
      • 1,067 Sq.Ft.
    • 5394 SE 136TH AVE Pending

      $325,000

      5394 SE 136TH AVE, Portland, OR 97236

      • 3 Beds
      • 3 Baths
      • 1,476 Sq.Ft.
    • 5308 SE 113TH AVE For Sale

      $320,000

      5308 SE 113TH AVE, Portland, OR 97266

    • 606 NW NAITO PKWY A14 For Sale

      $290,000

      606 NW NAITO PKWY A14, Portland, OR 97209

      • 1 Bed
      • 1 Bath
      • 691 Sq.Ft.
    • 606 NW NAITO PKWY A11 For Sale

      $270,000

      606 NW NAITO PKWY A11, Portland, OR 97209

      • 1 Bed
      • 1 Bath
      • 691 Sq.Ft.
    • 11126 SE BOISE ST Pending

      $269,900

      11126 SE BOISE ST, Portland, Portland, OR 97266

      • 2 Beds
      • 1 Bath
      • 620 Sq.Ft.
    • 205 S MONTGOMERY ST 401B For Sale

      $249,000

      205 S MONTGOMERY ST 401B, Portland, OR 97201

      • 1 Bed
      • 1 Bath
      • 835 Sq.Ft.
    • 820 NW NAITO PKWY G2 For Sale

      $220,000

      820 NW NAITO PKWY G2, Portland, OR 97209

      • 1 Bed
      • 1 Bath
      • 700 Sq.Ft.
    • 5308 SE 113TH AVE 1 For Sale

      $130,000

      5308 SE 113TH AVE 1, Portland, OR 97266

    View All

    Follow Us On Instagram