Leave a Message

Thank you for your message. We will be in touch with you shortly.

Explore Our Properties

Property Description

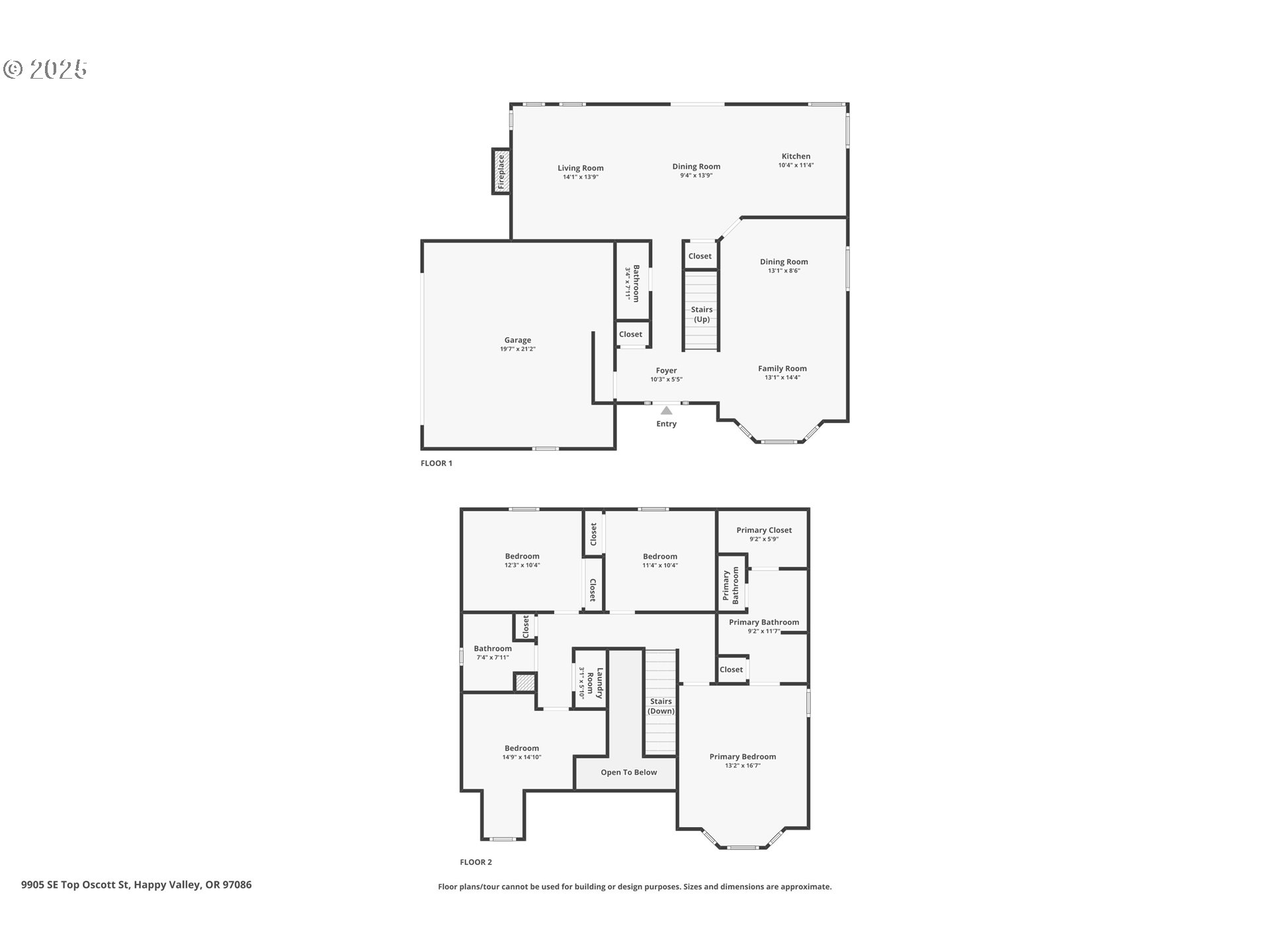
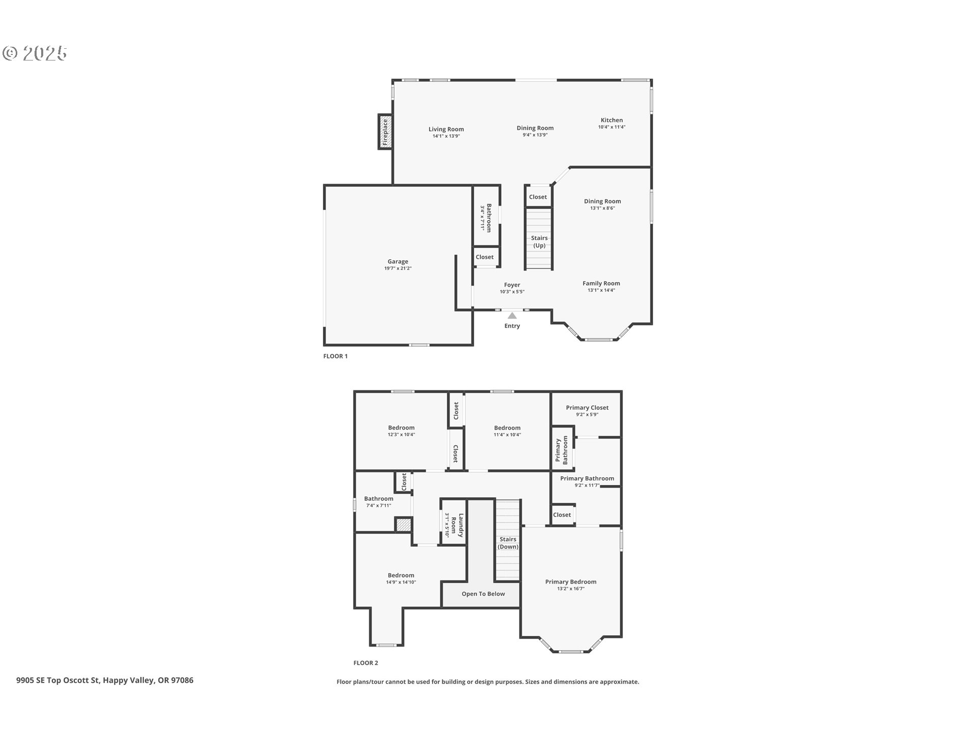
Fairy-tale two-story home at the end of an upscale, one-block street by Mt. Scott Elementary School. Shared driveway to attractive two car garage. Seasonal stream in the deep, park-like, private front yard. Arbor to side pathway leads to backyard with pond, fountain and lush evergreen low-maintenance landscaping. Attached outdoor cat enclosure (catio) accessiblefrom window tunnel inside. No homeowners' association! Great neighbors. Three bedrooms, two and a half baths, bonus room, with formal & informal great rooms. Entry with high ceiling and impressive chandelier. Exotic acacia hardwoods throughout, except primary bedroom which needs your touch. Updates to bathrooms, newer appliances in kitchen, and 1996 ABS plumbing was replaced in 2019 with PEX pipes throughout. Brand new 2025 air conditioning unit along with a new roof in 2021. Well-kept, very loved home in Mt. Scott, a short walk from elementary school and less than a mile from a 3-hole golf course. Walkable neighborhood. Happy Valley address without city taxes - tax lot is in unincorporated Clackamas County boundary.

Overview

Property Status
Sold
Lot Size
0.27 Acres
MLS ID
115220728
Property Type
Residential
Year Built
1998

Features & Amenities

Total Area
1,927 Sq.Ft.
Neighborhood
Happy Valley
Architecture Styles
Contemporary
Stories
2
Garage Spaces
2.0
Water Source
Public Water
Roof
Composition
Parking
Driveway
Heat Type
Forced Air
Air Conditioning
Central Air
Fireplace
Gas
Appliances
Dishwasher, Free Standing Range, Free Standing Refrigerator, Microwave, Stainless Steel Appliance
Other Interior Features
Jetted Tub, Laundry
Sewer
Public Sewer
Other Exterior Features
Patio
Elementary School
Mt Scott
Middle School
Rock Creek
High School
Clackamas
Sales Price
$585,000
Real Estate Tax
$6,393/yr

Downloads

9905 SE TOP O SCOTT ST

Schedule a Tour

We would love to help you see this beautiful home! As a full-service brokerage, we can help you tour. Please submit an offer, and answer questions about the buying process.

Thank you

for your interest in 9905 SE TOP O SCOTT ST, Happy Valley, OR 97086

9905 SE TOP O SCOTT ST
Navigate
9905 SE TOP O SCOTT ST
explore in 3d

I'm Interested In

9905 SE TOP O SCOTT ST

or
  • CallAaron Pontius

    License #201235406

    (503) 822-3730
  • Browse Our

    Active Listings

    • 9870 SE FRENCH ACRES DR For Sale

      $1,445,000

      9870 SE FRENCH ACRES DR, Happy Valley, OR 97086

      • 5 Beds
      • 3 Baths
      • 4,563 Sq.Ft.
    • 15395 SE FRYE ST For Sale

      $936,000

      15395 SE FRYE ST, Happy Valley, OR 97086

      • 4 Beds
      • 3 Baths
      • 3,370 Sq.Ft.
    • 10521 SE Webelos WAY 322 For Sale

      $799,960

      10521 SE Webelos WAY 322, Happy Valley, OR 97086

      • 4 Beds
      • 3 Baths
      • 2,676 Sq.Ft.
    • 11864 SE HUNTER DR For Sale

      $795,000

      11864 SE HUNTER DR, Happy Valley, OR 97086

      • 4 Beds
      • 3 Baths
      • 3,116 Sq.Ft.
    • 10494 SE REVERENT RD 315 For Sale

      $739,960

      10494 SE REVERENT RD 315, Happy Valley, OR 97086

      • 4 Beds
      • 3 Baths
      • 2,260 Sq.Ft.
    • 10473 SE Heritage RD 223 For Sale

      $706,890

      10473 SE Heritage RD 223, Happy Valley, OR 97086

      • 3 Beds
      • 3 Baths
      • 2,038 Sq.Ft.
    • 10594 SE REVERENT RD 312 For Sale

      $699,960

      10594 SE REVERENT RD 312, Happy Valley, OR 97086

      • 3 Beds
      • 2 Baths
      • 1,594 Sq.Ft.
    • 10062 SE Hornaday AVE 368 For Sale

      $657,460

      10062 SE Hornaday AVE 368, Happy Valley, OR 97086

      • 4 Beds
      • 3 Baths
      • 1,857 Sq.Ft.
    • 10512 SE Heritage RD 305 For Sale

      $654,660

      10512 SE Heritage RD 305, Happy Valley, OR 97086

      • 3 Beds
      • 3 Baths
      • 1,670 Sq.Ft.
    • 10560 SE Reverent RD 313 For Sale

      $624,960

      10560 SE Reverent RD 313, Happy Valley, OR 97086

      • 3 Beds
      • 3 Baths
      • 1,670 Sq.Ft.
    • 8601 SE BRISTOL PARK DR For Sale

      $539,000

      8601 SE BRISTOL PARK DR, Happy Valley, OR 97086

      • 3 Beds
      • 2 Baths
      • 1,791 Sq.Ft.
    View All

    Follow Us On Instagram