Leave a Message

Thank you for your message. We will be in touch with you shortly.

Explore Our Properties

Property Description

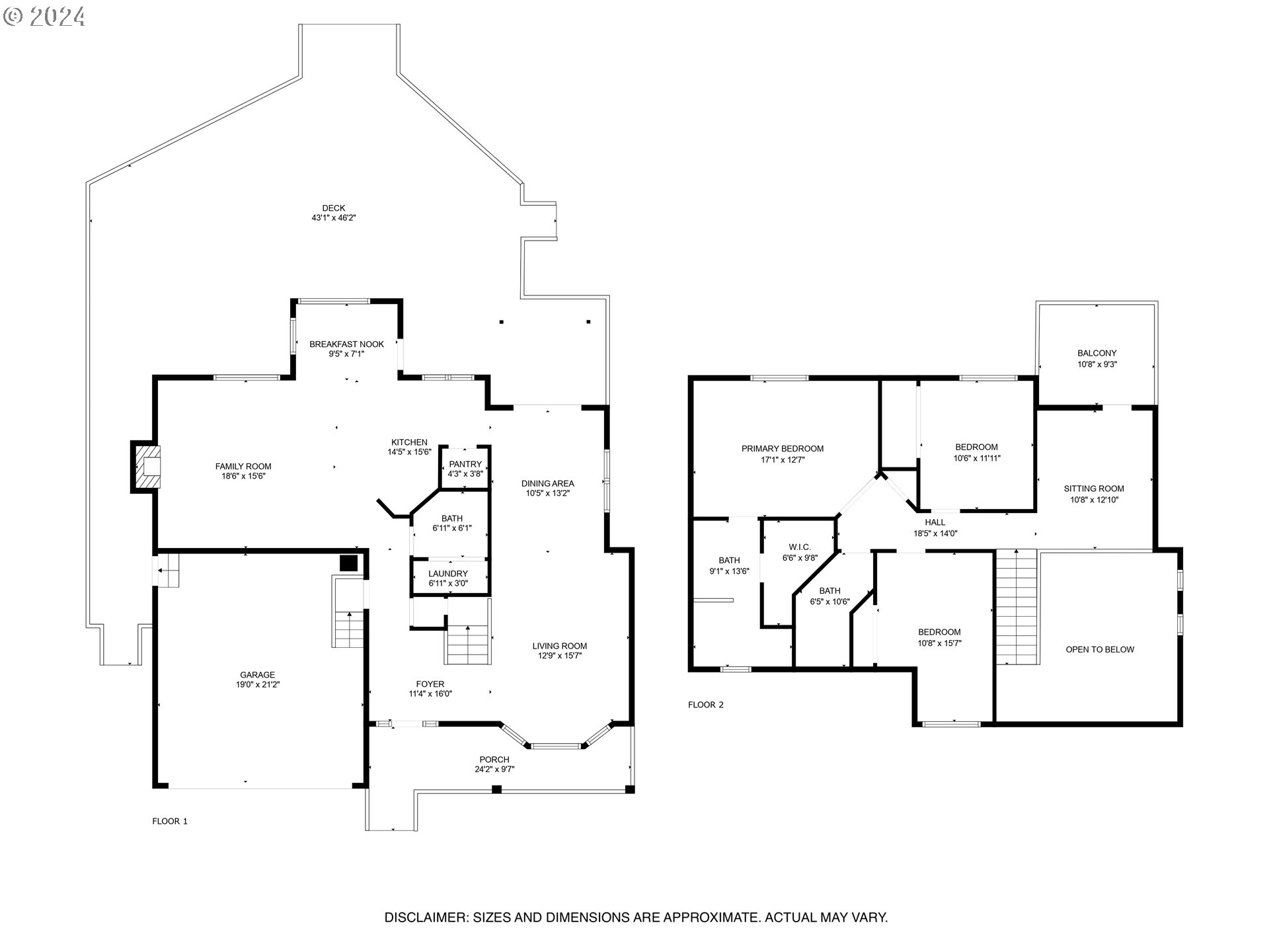
Selling AS-IS. Great spacious home with lots of light on a dead end street. 3 bd 2.1 ba with a loft upstairs that can be used as an office or extra living space with a deck attached. The tall ceilings in the front living room make the space feel so much bigger and brighter. Huge deck that looks out at the large private back yard with beautiful trees. Check out the primary bathroom which is very nicely updated with a walk in shower and closet with heated flooring. Open concept kitchen with a breakfast nook for more dining seating. Location is prime, being minutes away Multnomah Village, OHSU and downtown Portland. As a cosmetic fixer-upper, this home provides an excellent opportunity to make it your own in a great neighborhood. All appliances included.

Overview

Property Status
Sold
Lot Size
10,890 Sq.Ft.
MLS ID
24368622
Property Type
Residential
Year Built
1990

Features & Amenities

Total Area
2,106 Sq.Ft.
Architecture Styles
Stories 2, Traditional
View Description
Trees Woods
Stories
2
Garage Spaces
2.0
Water Source
Public Water
Roof
Composition
Parking
Driveway, On Street
Heat Type
Forced Air
Fireplace
Wood Burning
Appliances
Dishwasher, Free Standing Range, Free Standing Refrigerator, Island, Microwave, Pantry
Other Interior Features
Ceiling Fan, Garage Door Opener, Hardwood Floors, High Ceilings, Skylight, Wallto Wall Carpet, Washer Dryer
Sewer
Public Sewer
Other Exterior Features
Deck, Garden, Porch
Elementary School
Markham
Middle School
Jackson
High School
Ida B Wells
Sales Price
$599,000
Real Estate Tax
$11,568/yr

Downloads

8616 SW 49TH AVE

Schedule a Tour

We would love to help you see this beautiful home! As a full-service brokerage, we can help you tour. Please submit an offer, and answer questions about the buying process.

Enter a valid email

Thank you

for your interest in 8616 SW 49TH AVE, Portland, OR 97219

back to page
8616 SW 49TH AVE
Navigate

I'm Interested In

8616 SW 49TH AVE

or
  • CallMary Chapman

    License #201255883

    (503) 704-6219
  • Follow Us On Instagram