Leave a Message

Thank you for your message. We will be in touch with you shortly.

Explore Our Properties

Property Description

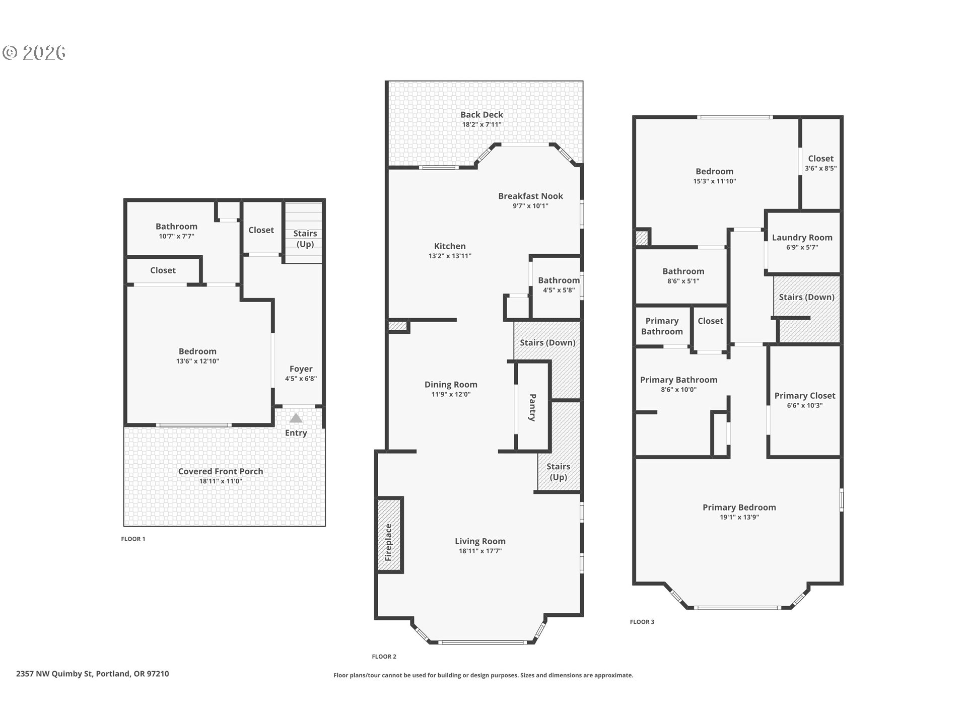
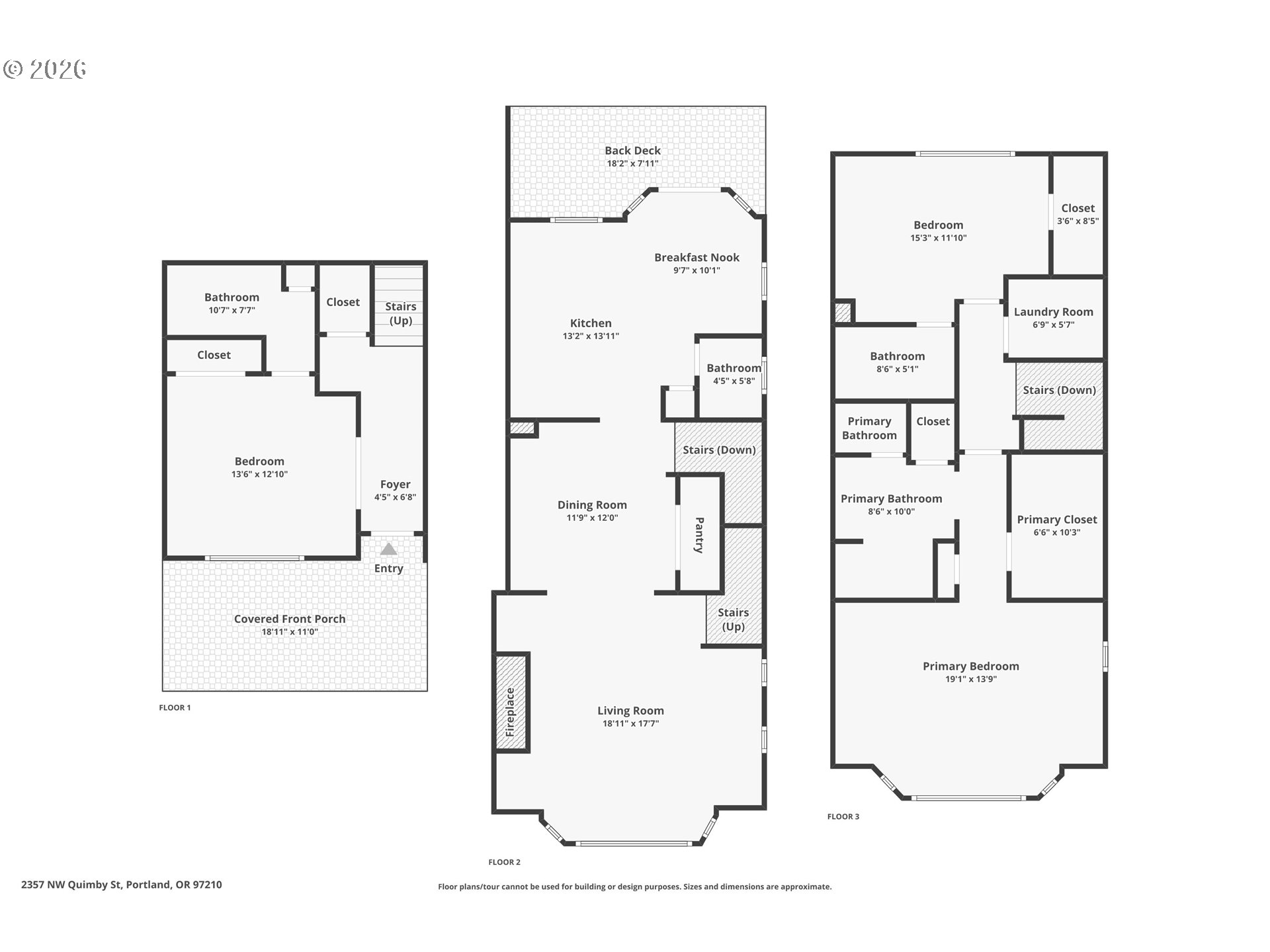
Classic yet truly distinctive, this rare end-unit townhome has been meticulously maintained and offers the perfect blend of sophistication, comfort, and everyday luxury. With windows on three sides, plantation shutters, hardwood flooring throughout, soaring ceilings with crown molding, and a gas fireplace with stylish built-ins, the home is filled with beautiful natural light and an inviting, upscale ambiance. The flexible first-floor bedroom suite provides ideal privacy for guests, a home office, or den. The main level features a spacious great room that seamlessly connects the kitchen, living, and dining areas and opens to a sunny deck--perfect for entertaining or relaxing. The gourmet island kitchen impresses with quartz countertops, new kitchen cabinets, and a charming breakfast nook with planning desk. Upstairs, retreat to the luxurious primary suite with vaulted ceilings, walk-in closet, and remodeled spa-like bathroom with dual sinks and walk-in shower, plus a second bedroom suite and dedicated laundry room. Additional upgrades include new light fixtures throughout, adding a fresh, modern touch to the home. A private gated entry leads to the attached 2-car side-by-side garage and two additional parking spaces--rare for this complex and ideal for secure guest parking. Enjoy the best of the Alphabet District with top amenities and eateries nearby, close proximity to Forest Park, and easy freeway access.

Overview

Property Status
For Sale
Lot Size
871 Sq.Ft.
MLS ID
754369019
Property Type
Residential
Year Built
2001

Features & Amenities

Total Area
2,311 Sq.Ft.
Neighborhood
Portland
Architecture Styles
Townhouse, Traditional
Stories
3
Garage Spaces
2.0
Water Source
Public Water
Roof
Composition
Lot Features
Level
Parking
Driveway, Secured
Heat Type
Forced Air
Air Conditioning
Central Air
Fireplace
Gas
Appliances
Builtin Range, Dishwasher, Disposal, Free Standing Refrigerator, Gas Appliances, Island, Microwave, Pantry, Solid Surface Countertop, Stainless Steel Appliance
Other Interior Features
Floor 3rd, Garage Door Opener, Hardwood Floors, High Ceilings, Quartz, Skylight, Soaking Tub, Sound System, Tile Floor, Wallto Wall Carpet, Washer Dryer
Sewer
Public Sewer
Substructure
Concrete Perimeter
Disability Features
Garageon Main, Walkin Shower
HOA Amenities
Exterior Maintenance, Insurance, Management, Sewer
Security Features
Security System
Other Exterior Features
Deck, Fenced, Patio
Elementary School
Chapman
Middle School
West Sylvan
High School
Lincoln
Sales Price
$925,000
Real Estate Tax
$15,545/yr
HOA
$884/mo

Downloads

2357 NW QUIMBY ST 24

Schedule a Tour

We would love to help you see this beautiful home! As a full-service brokerage, we can help you tour. Please submit an offer, and answer questions about the buying process.

Thank you

for your interest in 2357 NW QUIMBY ST 24, Portland, OR 97210

2357 NW QUIMBY ST 24
Navigate
2357 NW QUIMBY ST 24
explore in 3d

Mortgage Calculator

Estimate your monthly mortgage payment, including the principal and interest, property taxes, and HOA. Adjust the values to generate a more accurate rate.
$0,000 Your Payment 20 15 65
$0,000 Your Payment

I'm Interested In

2357 NW QUIMBY ST 24

or Contact

Browse Our

Active Listings

  • 6820 SE 29TH AVE For Sale

    $1,925,000

    6820 SE 29TH AVE, Portland, OR 97202

    • 5 Beds
    • 4 Baths
    • 4,664 Sq.Ft.
  • 5247 SW GARDEN HOME RD Pending

    $975,000

    5247 SW GARDEN HOME RD, Portland, OR 97219

    • 3 Beds
    • 4 Baths
    • 3,050 Sq.Ft.
  • 8512 SE CONSTANCE DR For Sale

    $960,000

    8512 SE CONSTANCE DR, Happy Valley, OR 97086

    • 5 Beds
    • 3 Baths
    • 3,984 Sq.Ft.
  • 2966 NW CORNELL RD, Portland For Sale

    $895,000

    2966 NW CORNELL RD, Portland, OR 97210

    • 4 Beds
    • 3 Baths
    • 2,850 Sq.Ft.
  • 3345 NE 126th Ave For Sale

    $785,000

    3345 Northeast 126th Avenue, Portland, OR 97230

    • 5 Beds
    • 3,528 Sq.Ft.
  • 1825 NE 53RD AVE For Sale

    $730,000

    1825 NE 53RD AVE, Portland, OR 97213

    • 3 Beds
    • 2 Baths
    • 1,885 Sq.Ft.
  • 5406 NE COUCH ST For Sale

    $630,000

    5406 NE COUCH ST, Portland, OR 97213

    • 3 Beds
    • 3 Baths
    • 1,797 Sq.Ft.
  • 2951 NE 35TH AVE Pending

    $625,000

    2951 NE 35TH AVE, Portland, OR 97212

    • 3 Beds
    • 2 Baths
    • 2,110 Sq.Ft.
  • 5239 N EMERSON DR, Portland For Sale

    $575,000

    5239 N EMERSON DR, Portland, OR 97217

    • 2 Beds
    • 2 Baths
    • 1,794 Sq.Ft.
  • 14124 SE MILL ST For Sale

    $525,000

    14124 SE MILL ST, Portland, OR 97233

    • 3 Beds
    • 2 Baths
    • 2,200 Sq.Ft.
  • 2525 SW HUME CT Pending

    $525,000

    2525 SW HUME CT, Portland, OR 97219

    • 4 Beds
    • 3 Baths
    • 2,472 Sq.Ft.
  • 616 SE 60TH AVE For Sale

    $525,000

    616 SE 60TH AVE, Portland, OR 97215

    • 3 Beds
    • 2 Baths
    • 1,602 Sq.Ft.
  • 5265 SE LAMBERT ST Pending

    $510,000

    5265 SE LAMBERT ST, Portland, OR 97206

    • 3 Beds
    • 2 Baths
    • 2,366 Sq.Ft.
  • 3712 SE 31ST AVE Pending

    $499,000

    3712 SE 31ST AVE, Portland, OR 97202

    • 4 Beds
    • 2 Baths
  • 8981 N DRUMMOND AVE For Sale

    $490,000

    8981 N DRUMMOND AVE, Portland, OR 97217

    • 3 Beds
    • 3 Baths
    • 1,594 Sq.Ft.
  • 5425 SW VIEW POINT TER For Sale

    $475,000

    5425 SW VIEW POINT TER, Portland, OR 97239

    • 2 Beds
    • 3 Baths
    • 1,710 Sq.Ft.
  • 9023 SE ANKENY ST For Sale

    $474,900

    9023 SE ANKENY ST, Portland, OR 97216

    • 4 Beds
    • 2 Baths
  • 16627 SE BUSH ST For Sale

    $474,000

    16627 SE BUSH ST, Portland, OR 97236

    • 4 Beds
    • 2 Baths
    • 1,600 Sq.Ft.
  • 4405 SE ALDER ST Pending

    $465,000

    4405 SE ALDER ST, Portland, OR 97215

    • 2 Beds
    • 2 Baths
    • 2,679 Sq.Ft.
  • 7570 SE DIVISION ST Pending

    $455,000

    7570 SE DIVISION ST, Portland, OR 97206

    • 3 Beds
    • 4 Baths
    • 1,610 Sq.Ft.
  • 3449 NE 81ST AVE For Sale

    $429,900

    3449 NE 81ST AVE, Portland, OR 97213

    • 3 Beds
    • 3 Baths
    • 1,329 Sq.Ft.
  • 16901 SE IVON ST For Sale

    $415,000

    16901 SE IVON ST, Portland, OR 97236

    • 2 Beds
    • 1 Bath
    • 2,048 Sq.Ft.
  • 5123/5125 NE KILLINGSWORTH ST For Sale

    $415,000

    5123/5125 NE KILLINGSWORTH ST, Portland, OR 97218

    • 4 Beds
    • 2 Baths
    • 1,702 Sq.Ft.
  • 11529 NE FARGO ST Pending

    $399,900

    11529 NE FARGO ST, Portland, OR 97220

    • 3 Beds
    • 2 Baths
    • 1,599 Sq.Ft.
  • 3063 SE 112TH AVE Pending

    $399,900

    3063 SE 112TH AVE, Portland, OR 97266

    • 3 Beds
    • 2 Baths
    • 1,305 Sq.Ft.
  • 7453 N STOCKTON AVE For Sale

    $399,000

    7453 N STOCKTON AVE, Portland, OR 97203

    • 2 Beds
    • 2 Baths
    • 1,840 Sq.Ft.
  • 610 NE 79TH AVE For Sale

    $390,000

    610 NE 79TH AVE, Portland, OR 97213

    • 2 Beds
    • 1 Bath
    • 712 Sq.Ft.
  • 6099 NE Going ST Pending

    $385,000

    6099 NE Going ST, Portland, OR 97218

    • 2 Beds
    • 1 Bath
    • 1,759 Sq.Ft.
  • 5253 SE KNAPP ST Pending

    $375,000

    5253 SE KNAPP ST, Portland, OR 97206

    • 3 Beds
    • 2 Baths
    • 1,342 Sq.Ft.
  • 725 NW FLANDERS ST 304 For Sale

    $375,000

    725 NW FLANDERS ST 304, Portland, OR 97209

    • 1 Bed
    • 1 Bath
    • 1,104 Sq.Ft.
  • 836 S CURRY ST 1206 Pending

    $375,000

    836 S CURRY ST 1206, Portland, OR 97239

    • 1 Bed
    • 1 Bath
    • 982 Sq.Ft.
  • 6313 SE 96TH PL Pending

    $340,000

    6313 SE 96TH PL, Portland, OR 97266

    • 3 Beds
    • 2 Baths
    • 1,224 Sq.Ft.
  • 5394 SE 136TH AVE Pending

    $325,000

    5394 SE 136TH AVE, Portland, OR 97236

    • 3 Beds
    • 3 Baths
    • 1,476 Sq.Ft.
  • 606 NW NAITO PKWY A14 For Sale

    $290,000

    606 NW NAITO PKWY A14, Portland, OR 97209

    • 1 Bed
    • 1 Bath
    • 691 Sq.Ft.
  • 606 NW NAITO PKWY A11 For Sale

    $270,000

    606 NW NAITO PKWY A11, Portland, OR 97209

    • 1 Bed
    • 1 Bath
    • 691 Sq.Ft.
  • 820 NW NAITO PKWY G2 For Sale

    $220,000

    820 NW NAITO PKWY G2, Portland, OR 97209

    • 1 Bed
    • 1 Bath
    • 700 Sq.Ft.
  • 15946 NE FREMONT ST For Sale

    $219,999

    15946 NE FREMONT ST, Portland, OR 97230

    • 3 Beds
    • 2 Baths
    • 1,073 Sq.Ft.
View All

Follow Us On Instagram