Leave a Message

Thank you for your message. We will be in touch with you shortly.

Explore Our Properties

Property Description

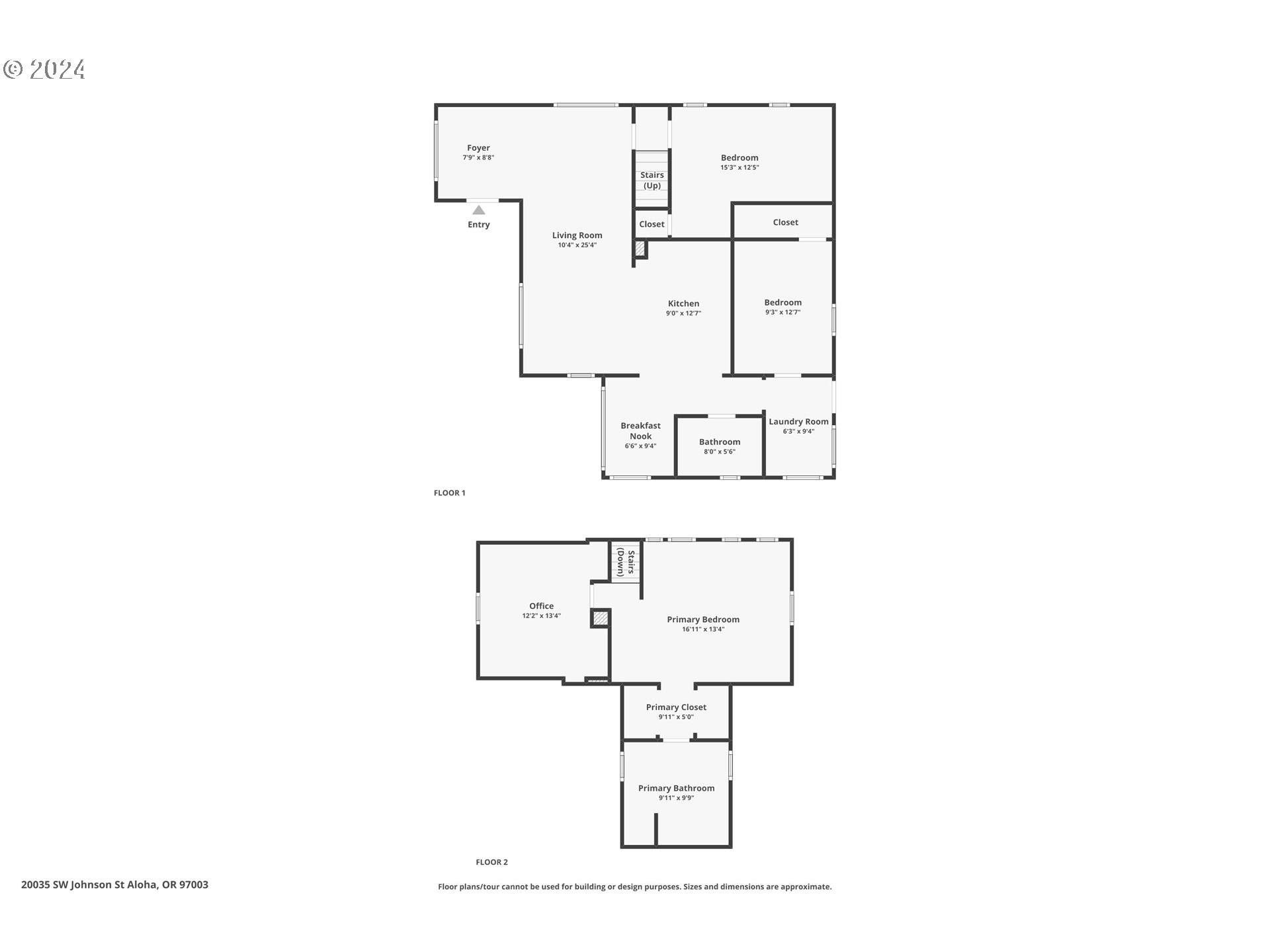
Welcome home to this perfect blend of classic early mid-century character with modern updates! You will adore this beautifully renovated 3 bedroom, 2 bathroom cottage gem that is totally move-in ready on a spacious corner lot. The open layout welcomes you with gorgeous hardwood floors and a stunning living room filled with natural light. You'll love the livability of having the coveted two bedrooms and a remodeled full bathroom on the main level. The gourmet kitchen is a chef's dream, featuring built-ins, a gas range, subway tile backsplash, stainless steel appliances, butcher block countertops, farmhouse sink, and tile floors. All of this with a sunlit traditional built-in dining nook, perfect for morning coffee and weeknight dinner. Upstairs, the spacious primary suite is a true retreat, featuring two closets and a beautifully updated large bathroom with a modern vanity and tiled flooring. A versatile bonus room upstairs offers flexibility as an office, hobby room, den, or dressing room -- so many opportunities perfect for adapting to your lifestyle. The outdoor space offers endless potential with a large-sized paver patio and detached building you can use as a workshop, storage, or creative space. This backyard is ready for your personal touch to design the ultimate entertaining area or create a serene escape for relaxation. You even have space for RV parking! Ideally located close to parks, schools, shopping, dining, and entertainment, this home offers convenience and a vibrant community. With a perfect blend of timeless charm and thoughtful upgrades, you have the ideal space for both comfort and style. Solar panels are fully paid, so you can enjoy maximum energy efficiency and an extremely minimal electric bill. Please inquire about grants toward eligible buyer's downpayment and closing costs! Don't miss your chance to make this home your own!

Overview

Property Status
Sold
Lot Size
8,276 Sq.Ft.
MLS ID
24498754
Property Type
Residential
Year Built
1948

Features & Amenities

Total Area
1,650 Sq.Ft.
Neighborhood
Aloha
Architecture Styles
Stories 2, Cottage
Stories
2
Water Source
Public Water
Roof
Composition
Lot Features
Corner Lot, Level, Trees
Parking
Driveway, RVAccess Parking
Heat Type
Active Solar, Forced Air
Air Conditioning
Window Unit
Appliances
Dishwasher, ENERGYSTARQualified Appliances, Free Standing Gas Range, Free Standing Refrigerator, Plumbed For Ice Maker, Range Hood, Solid Surface Countertop, Stainless Steel Appliance, Tile
Other Interior Features
Ceiling Fan, Hardwood Floors, High Ceilings, High Speed Internet, Laundry, Slate Flooring, Tile Floor, Vaulted Ceiling, Wallto Wall Carpet, Washer Dryer, Wood Floors
Sewer
Public Sewer
Substructure
Concrete Perimeter
Disability Features
Main Floor Bedroom Bath
Other Exterior Features
Fenced, Garden, Outbuilding, Patio, Porch, RVParking, RVBoat Storage, Security Lights, Workshop, Yard
Elementary School
Reedville
Middle School
Groner
High School
Century
Sales Price
$525,000
Real Estate Tax
$3,149/yr

Downloads

20035 SW JOHNSON ST

Schedule a Tour

We would love to help you see this beautiful home! As a full-service brokerage, we can help you tour. Please submit an offer, and answer questions about the buying process.

Thank you

for your interest in 20035 SW JOHNSON ST, Beaverton, OR 97003

20035 SW JOHNSON ST
Navigate
20035 SW JOHNSON ST
explore in 3d

I'm Interested In

20035 SW JOHNSON ST

or
  • CallJoel Camara

    License #201233162

    (503) 386-4248
  • Browse Our

    Active Listings

    • 20760 SW ROSEMOUNT ST Pending

      $520,000

      20760 SW ROSEMOUNT ST, Beaverton, OR 97078

      • 4 Beds
      • 3 Baths
      • 1,812 Sq.Ft.
    • 17670 SW SEPTEMBER LN For Sale

      $510,000

      17670 SW SEPTEMBER LN, Beaverton, OR 97003

      • 4 Beds
      • 3 Baths
      • 1,928 Sq.Ft.
    • 20070 SW CASCADIA ST Pending

      $420,000

      20070 SW CASCADIA ST, Beaverton, OR 97078

      • 3 Beds
      • 1 Bath
      • 960 Sq.Ft.
    View All

    Follow Us On Instagram