Leave a Message

Thank you for your message. We will be in touch with you shortly.

Explore Our Properties

Property Description

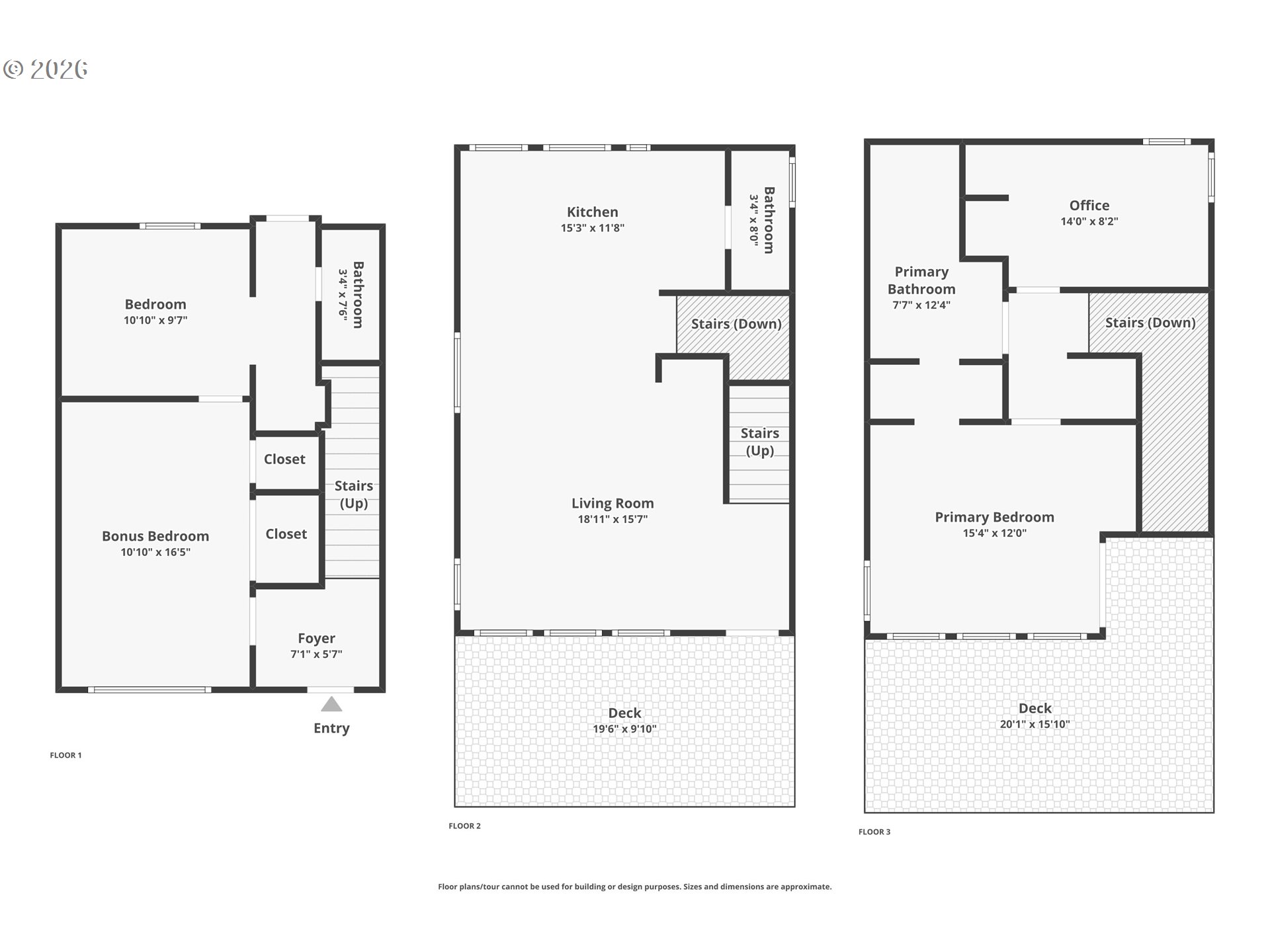
A rare coastal retreat with panoramic ocean views, this exquisite three-level beach home is perched above the shoreline in coveted Oceanside and offers an extraordinary opportunity to own a front-row seat to the Oregon Coast. Thoughtfully designed to capture breathtaking ocean vistas including iconic Three Arch Rocks, the residence blends refined comfort with timeless coastal charm. The lower level welcomes you with a bonus room, bedroom and a full bathroom, ideal for guests or private retreats, along with direct access to the backyard, where a dedicated storage shed provides convenient space for beach gear and outdoor essentials, and covered parking adds everyday ease. On the main level, natural light pours into an open and inviting living space designed for both relaxation and entertaining, with a kitchen featuring abundant cabinetry and expansive counter space perfect for preparing coastal feasts. The living room is anchored by a cozy fireplace and elegant built-in bookcase, creating a warm yet sophisticated ambiance, while the ocean-facing deck offers sweeping views of the Pacific and the dramatic beauty of Three Arch Rocks, an unforgettable backdrop for morning coffee or sunset gatherings. The upper level is a private sanctuary with upstairs laundry for convenience, an office or additional bedroom offering flexible use, and a showstopping primary suite with its own private deck overlooking the coastline and delivering awe-inspiring views. A walk-through closet leads to the spa-like en suite bathroom complete with a double vanity designed for comfort and style. Updates include a new roof, siding/paint, windows, engineered wood floors, gutters, replaced all doors in the home, dishwasher, stove, shed, and whole home generator. Homes of this caliber and location are seldom available, making this more than a beach house but a rare coastal lifestyle where every level reveals a new perspective of Oregon's natural beauty.

Overview

Property Status
For Sale
Lot Size
1,742 Sq.Ft.
MLS ID
633358990
Property Type
Residential
Year Built
1996

Features & Amenities

Total Area
1,764 Sq.Ft.
Architecture Styles
Contemporary
View Description
Ocean
Stories
3
Water Source
Public Water
Roof
Composition
Lot Features
Level
Parking
Driveway, Off Street
Heat Type
Wall Furnace, Zoned
Fireplace
Propane
Appliances
Dishwasher, Free Standing Range, Free Standing Refrigerator, Microwave
Other Interior Features
Ceiling Fan
Sewer
Public Sewer
Substructure
Slab
Other Exterior Features
Deck
Elementary School
Liberty
Middle School
Tillamook
High School
Tillamook
Sales Price
$720,000
Real Estate Tax
$4,407/yr

Downloads

1435 SUNSET AVE

Schedule a Tour

We would love to help you see this beautiful home! As a full-service brokerage, we can help you tour. Please submit an offer, and answer questions about the buying process.

Enter a valid email

Thank you

for your interest in 1435 SUNSET AVE, Oceanside, OR 97134

back to page
1435 SUNSET AVE
Navigate

Mortgage Calculator

Estimate your monthly mortgage payment, including the principal and interest, property taxes, and HOA. Adjust the values to generate a more accurate rate.
$0,000 Your Payment 20 15 65
$0,000 Your Payment

I'm Interested In

1435 SUNSET AVE

or
  • CallKrystal Ramirez-Pichette

    License #201250320, 2502356

    (971) 330-3010
  • Follow Us On Instagram