Leave a Message

Thank you for your message. We will be in touch with you shortly.

Explore Our Properties

Property Description

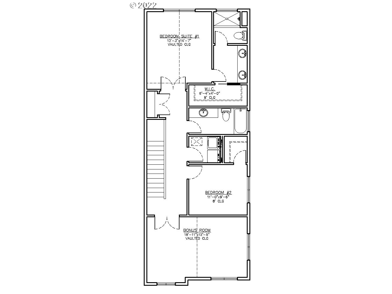
Brand new townhome project underway by Icon Construction in the heart of Canby! Walking distance to parks, trails, dining, groceries and schools. Two bedroom plan with a bonus room. Great room style main floor living. Laundry room upstairs for convenience.

Overview

Property Status
Sold
MLS ID
22697700
Property Type
Residential
Year Built
2022

Features & Amenities

Architecture Styles
Stories 2, Custom Style
Stories
2
Garage Spaces
1.0
Water Source
Public Water
Roof
Composition
Lot Features
Level
Parking
Driveway
Heat Type
Forced Air
Other Interior Features
Laminate Flooring, Laundry, Wallto Wall Carpet
Sewer
Public Sewer
HOA Amenities
Commons, Insurance, Management
Other Exterior Features
Covered Patio
Elementary School
Knight
Middle School
Baker Prairie
High School
Canby
Sales Price
$442,000
Real Estate Tax
$1,000/yr
HOA
$100/mo

Downloads

1124 Lilium LN 44

Schedule a Tour

We would love to help you see this beautiful home! As a full-service brokerage, we can help you tour. Please submit an offer, and answer questions about the buying process.

Enter a valid email

Thank you

for your interest in 1124 Lilium LN 44, Canby, OR 97013

back to page
1124 Lilium LN 44
Navigate

I'm Interested In

1124 Lilium LN 44

or
  • CallAndrea Hughes

    License #950600130

    (503) 998-9953
  • Follow Us On Instagram